Silvercrest Custom Homes Introduces Prefabricated Laneway Homes In Vancouver BC
Silvercrest Custom Homes partners with manufacturers that use sustainable building materials cutting back on carbon emissions
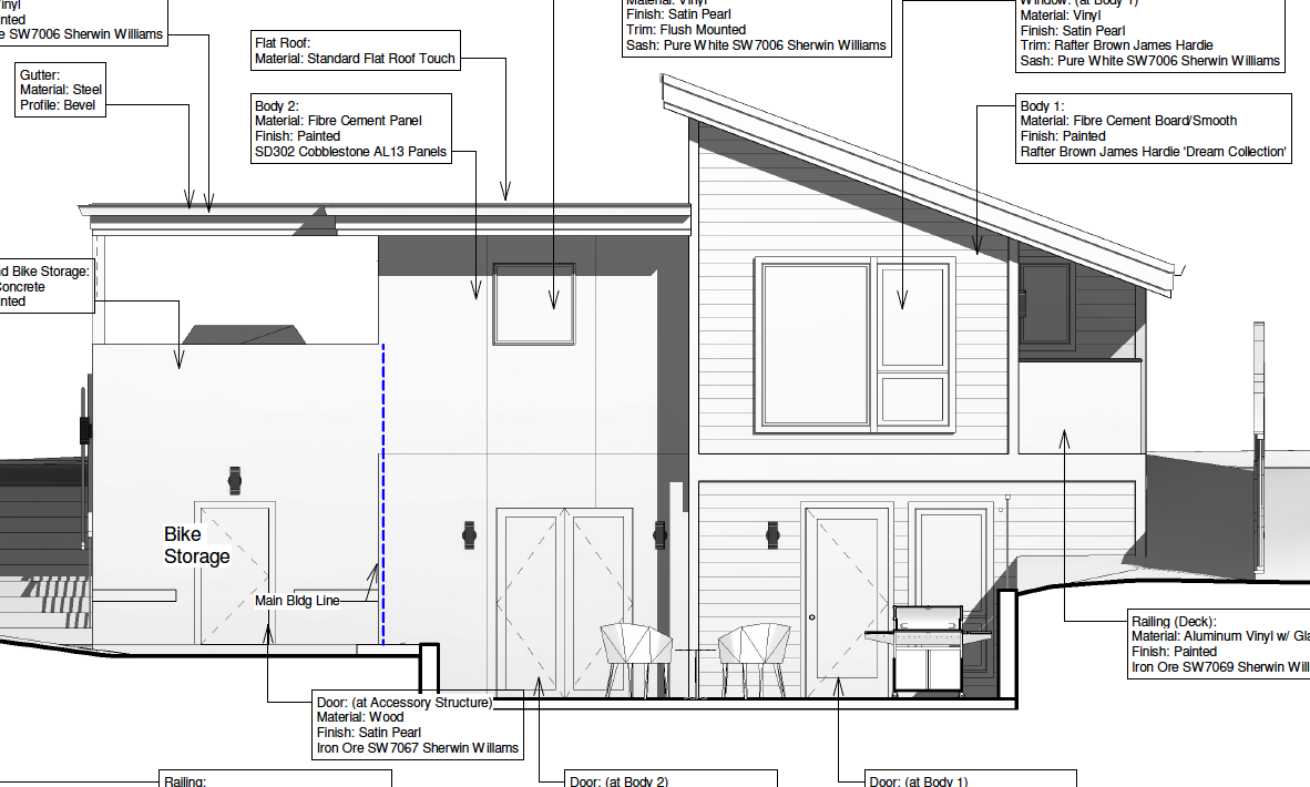
VANCOUVER, BRITISH COLUMBIA, CANADA, April 10, 2023/EINPresswire.com/ -- PRE FAB LANEWAY HOMES
For immediate release – VANCOUVER, British Columbia Sivercrest Custom Homes is excited to introduce a complete system for prefabricated laneway homes. This system is available for custom builds or expansions, giving us the ability to help our clients effortlessly expand their property. Laneway homes are separate structures typically built in a backyard with access to an alleyway. These structures allow clients to meet their need for additional space without having to move into a bigger home.
At Silvercrest Custom Homes, we prioritize people and the planet. Our prefabricated laneway homes are assembled in a factory and installed on site, changing the construction process and reducing its impact on the environment. This building method is also faster, saving our clients money without sacrificing quality building materials.
The way we assemble our laneway panels gives customers an airtight, energy-efficient building. These homes are smaller and less costly to heat and cool than traditional homes. They are also made with non-toxic materials and low VOC finishes that help improve indoor air quality.
Reducing Our Impact on the Environment in an Urban Setting
Laneway homes are more compact than other housing units. Silvercrest Custom Homes partners with manufacturers that use sustainable building materials cutting back on carbon emissions. Each panel is insulated between layers with materials that are durable yet lightweight.
Materials within the panels are recyclable. If a client decides to remove their laneway home, they can send the panels back to us and we will work with the supplier to break them down and reuse them in other projects.
Our buildings are durable and adaptable. We are proud to offer customization to our clients with laneway panels that can be measured and adapted to virtually any design. Compared to other construction methods, the laneway system uses fewer materials and take significantly less time to complete.
As climate disasters increase in frequency, our clients are looking for resilient homes. Our prefabricated laneway homes are made of fire-resistant materials and strategically constructed to reduce emissions. These homes are quick and easy to rebuild in the instance of fire damage.
Our prefabricated laneway homes are constructed using a variety of durable materials. Clients can add special features such as garages and bike storage.
What Our Clients Can Do With Laneway Homes
Prefabricated laneway homes serve multiple purposes. Our clients can use them to add office space, making their remote work more peaceful and productive. They can add on to their existing homes to accommodate growing families or rent out space for extra income.
Our team works directly with customers, surveying each site to create designs that fit in with the existing space and local regulations. We advise customers to check with their local municipality to get the necessary permits for utilities and to learn about other regulations that may restrict their ability to build a laneway structure.
Choose the Sustainable Option
With our system of prefabricated laneway homes, Silvercrest Custom Homes offers clients a greener construction method and a new home or expansion that is energy efficient and healthier for their whole family.
Contact us for more information.
Greg Birch
Silvercrest Custom Homes
+1 604-227-2710
email us here
Visit us on social media:
Facebook
YouTube
Laneway House Vancouver
Legal Disclaimer:
EIN Presswire provides this news content "as is" without warranty of any kind. We do not accept any responsibility or liability for the accuracy, content, images, videos, licenses, completeness, legality, or reliability of the information contained in this article. If you have any complaints or copyright issues related to this article, kindly contact the author above.
